
Pampig funkis
VH156
Omsorgsfullt utformat trähus i funkisstil med sedumtak.
Optimala ytor med sedumtak
Rymligheten är talande i detta hus på två plan. Stora sociala ytor – men trots det gott om plats för avskildhet.
På utsidan finner du uteplatser i flera olika väderstreck. Perfekt för maxat utomhushäng!
VH156
- Boarea
220,3 m² + garage om 38,3 m² - Byggarea
214,6 m²
Inspireras av VH156











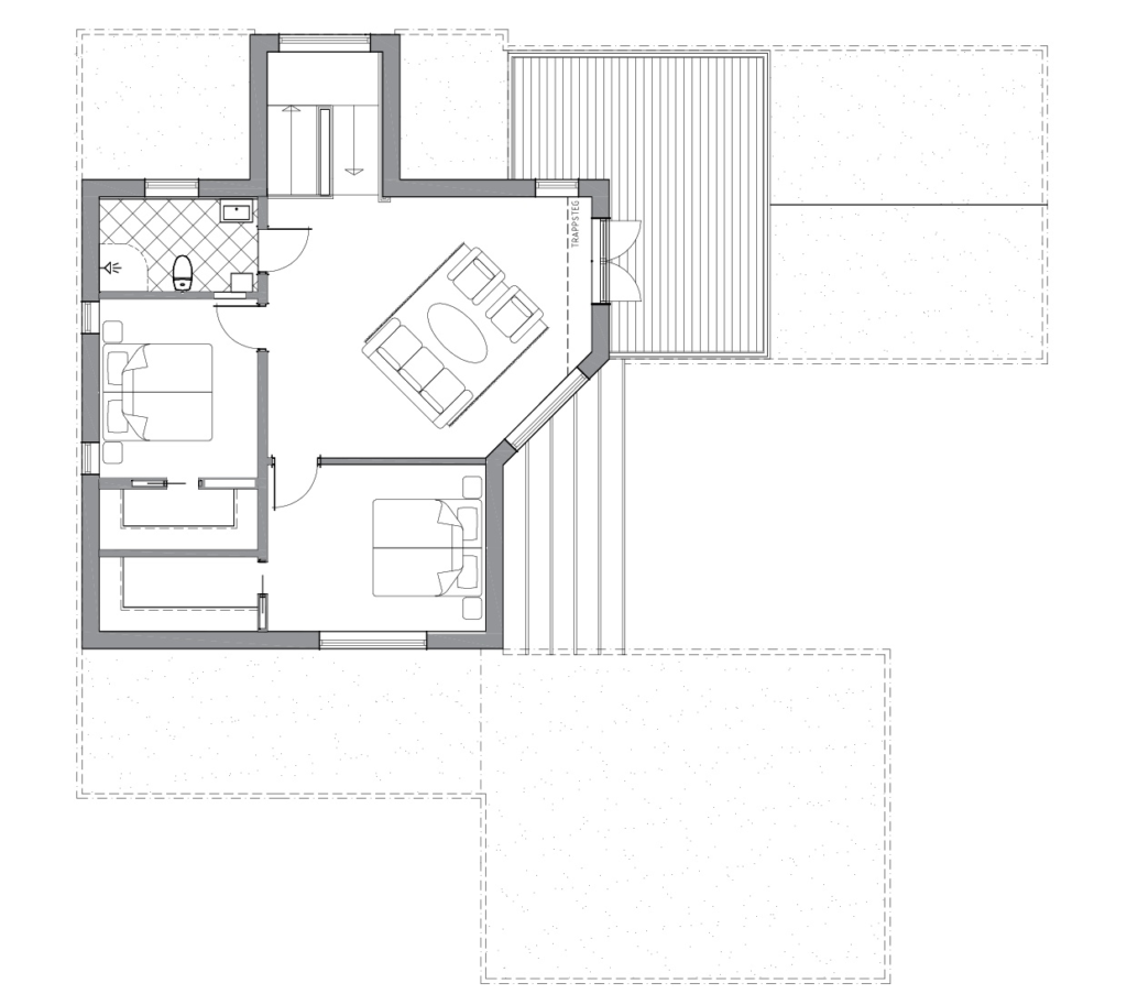
Planritning
Plan 1

Plan 2
