
Kvalitet i varje vrå
VH289
Detta tvåplanshus med liggande vit träpanel är det traditionella moderniserat. Huset genomsyras av genomtänkta val och både in- och utsida går i samma stil. Här är helheten tydlig.
Dubbel karaktär
VH289 blev 2024 nominerat till årets småhus och det går att förstå när man tittar på det. Spröjsen, de raka linjerna och den liggande panelen skapar något alldeles extra.
Ett stort och rymligt entréplan med sociala ytor toppas med ett trapphus med pampig känsla som leder till plan 2 där sovrum och privata ytor är placerade.
VH289
- Boarea
328,6 m² - Byggarea
237,2 m²
Inspireras av VH289







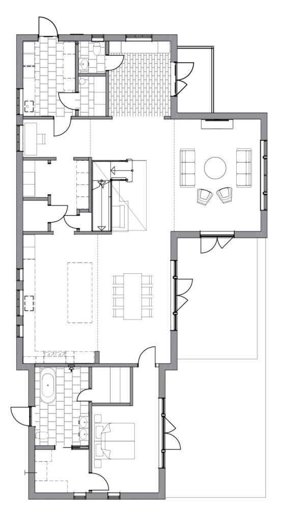
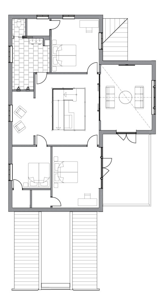
Planritning
Detta hus har två plan fördelat enligt nedan planritningar:
Plan 1

Plan 2
