
Modernt sluttningshus
Villa Björnänge är ett modernt hus med stora ljusinsläpp åt alla väderstreck. Entrén finner vi på övervåningen, med genomsikt ut över balkongen och öppnavyer.
Villa Björnänge
- Antal rum 8 rum & kök
- Antal badrum 2st
- Antal Våningar 2st
- Taklutning 10°
- Boarea 196m²
- Byggnadsarea 135m²

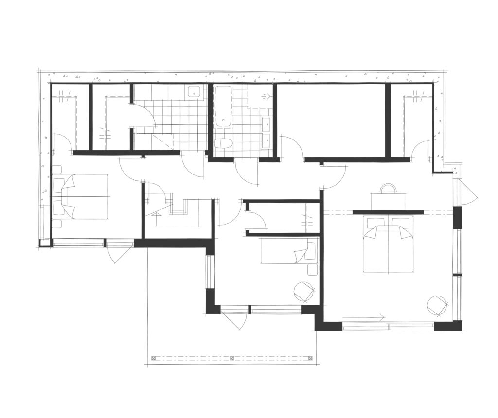
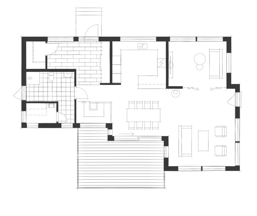
Planlösning







Inte din hustyp?
Här har vi fler husmodeller och kundanpassade hus som kanske kan inspirera dig.



Bolla idéer?
Våra säljagenter finns här för att hjälpa er att skapa ert drömhus.