
Herrgårdsvillan
Villa Dalen är en pampig villa i herrgårdsstil. Utsidan charmar oss med en känsla från förr och insidan bjuder på många moderna bekvämligheter.
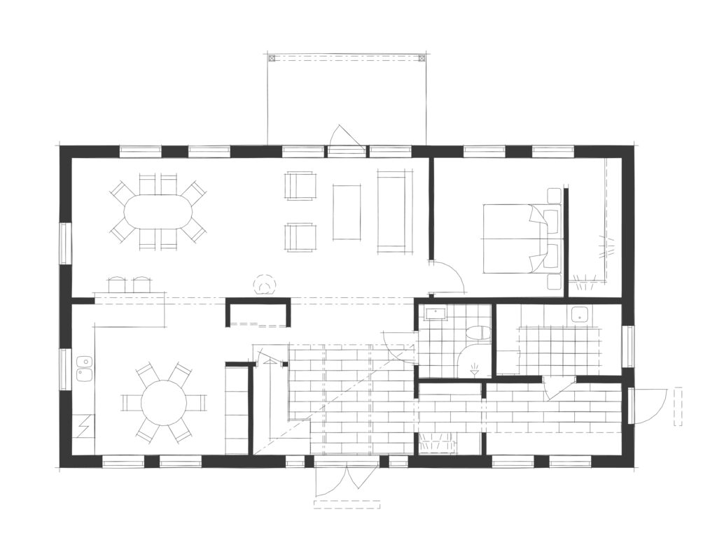
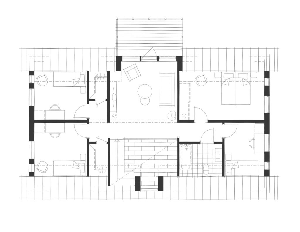
Villa Dalen
- Antal rum 7 rum & kök
- Antal badrum 2st
- Antal Våningar 2st
- Taklutning 27/63°
- Boarea 211m²
- Byggnadsarea 137m²

Planlösning







Inte din hustyp?
Här har vi fler husmodeller och kundanpassade hus som kanske kan inspirera dig.



Bolla idéer?
Våra säljagenter finns här för att hjälpa er att skapa ert drömhus.