
Modernt och lekfullt
Villa Laholm är ett välplanerat enplanshus som med fördel kan kopplas med carport eller garage. Här finns allt du behöver på 126 välplanerade kvadratmetrar. Funkar lika bra fristående som parhus.
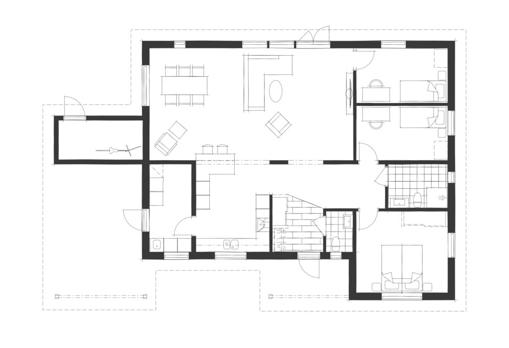
Villa Laholm
- Antal rum 4 rum & kök
- Antal badrum 2st
- Antal Våningar 1
- Taklutning 14-20°
- Boarea 126m²
- Byggnadsarea 179m²




Planlösning



Inte din hustyp?
Här har vi fler husmodeller och kundanpassade hus som kanske kan inspirera dig.



Bolla idéer?
Våra säljagenter finns här för att hjälpa er att skapa ert drömhus.