
Tidsenligt och familjärt
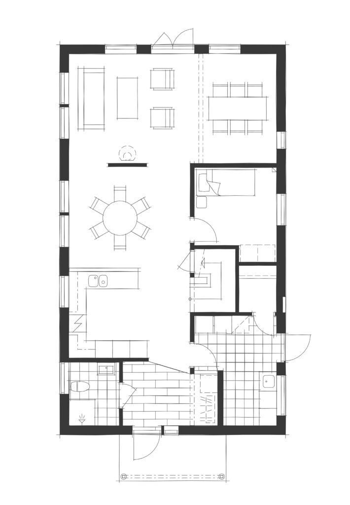
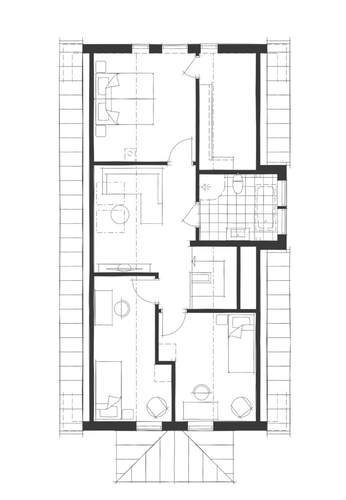
Villa Nyatorp är ett gavelställt 1.5-planshus fördelat på 158kvm. Här välkomnas du av ett ljust entréplan där umgänge och gemenskap står i fokus. Dra dig undan på den mer privata avdelningen en trappa upp.
Villa Nyatorp
- Antal rum 6 rum & kök
- Antal badrum 2st
- Antal Våningar 2st
- Taklutning 45/14°
- Boarea 158m²
- Byggnadsarea 111m²




Planlösning







Bolla idéer?
Våra säljagenter finns här för att hjälpa er att skapa ert drömhus.