
Klassiskt med ombonad känsla
Villa Solvik är ett 1.5-planshus med välkomnande entré i väderskyddad vinkel. Här erbjuds ni som kund att själva färdigställa er övervåning. Låt villa Solvik växa tillsammans med er som familj.
Villa Solvik
- Antal rum 3 rum & kök
- Antal badrum 1/(1)st
- Antal Våningar 2
- Taklutning 45/27°
- Boarea 89m²/160m²
- Byggnadsarea 106m²

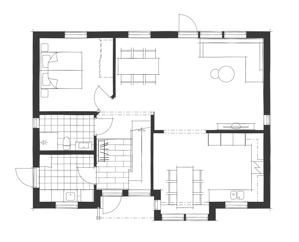
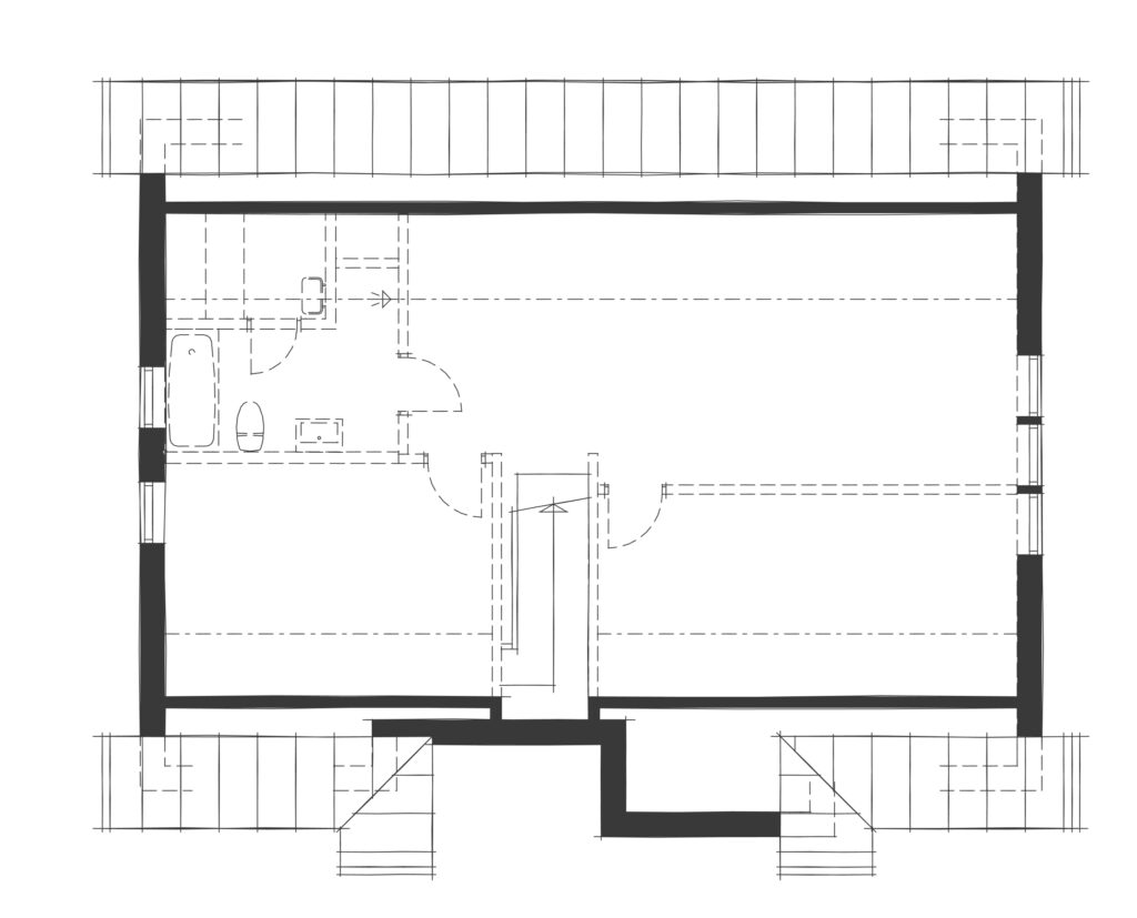
Planlösning




Inte din hustyp?
Här har vi fler husmodeller och kundanpassade hus som kanske kan inspirera dig.



Bolla idéer?
Våra säljagenter finns här för att hjälpa er att skapa ert drömhus.