
Industriell lada
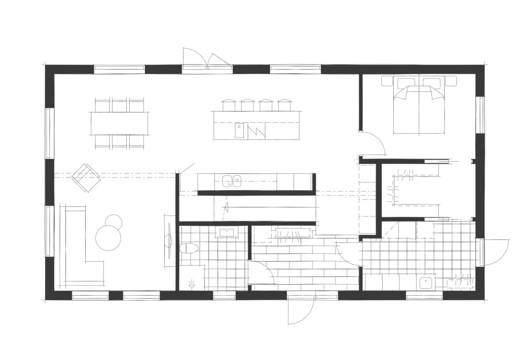
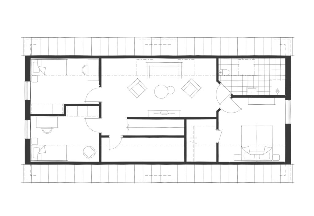
Villa Stocken är en industriell variant av en klassisk lada. Med sina två plan finner man den mer sociala ytan på nedervåningen. Ett stort kök som bjuder in till härliga middagar och kladdiga bullbak.
Villa Stocken
- Antal rum 5 rum & kök
- Antal badrum 2st
- Antal Våningar 2st
- Taklutning 45°
- Boarea 203.4m²
- Byggnadsarea 128m²



Planlösning




Inte din hustyp?
Här har vi fler husmodeller och kundanpassade hus som kanske kan inspirera dig.



Bolla idéer?
Våra säljagenter finns här för att hjälpa er att skapa ert drömhus.